川井永安加盟店(川井不動產開發有限公司)
04-7568567
★埔心晟光6★
物件編號:
S2922050
1461
萬
(含車位價)
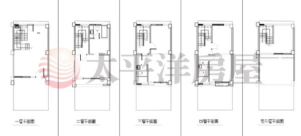
別墅
6
房
2
廳
4
衛
物件特色
全區12戶,高品質建商 步行1分鐘可到運動公園 1~4F60*60拋光石英磚 大潤發3分鐘可到
地址
埔心鄉明道路
建物登記
45.1
坪
附屬建物
1 坪
公共設施
停車場
地下室
分項面積主建物
44.1 坪
土地登記總坪數
0 坪
管理費
元/每月
車位
私有/車庫
座向
座北 朝南
屋齡
樓高/樓別
5 /1-5
類別
住家
外牆建材
捷運站牌
市場
學區
公園
商圈