林口文化加盟店(躍龍門房屋仲介有限公司)
02-26009797
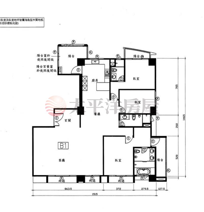
大千苑三房車
物件編號:
S2894427
5388
萬
大樓
3
房
2
廳
3
衛
物件特色
近捷運站,雙停車位 前後陽台,三面採光 社區管理完善,優質社區
地址
林口區文化三路一段
建物登記
105.18
坪
附屬建物
9.01 坪
公共設施
26.15 坪
停車場
15.99 坪
地下室
分項面積主建物
54.03 坪
土地登記總坪數
12.7 坪
管理費
9620 / 月繳 元/每月
車位
公設車位/坡道平面
座向
座東北 朝西南
屋齡
13.6 年
樓高/樓別
11 /8
類別
住家
外牆建材
二丁掛
捷運站牌
市場
學區
公園
商圈
A9林口站 (276 公尺)
全聯福利中心
新林國小