|
淡水捷運直營店(澄果房屋仲介股份有限公司)
02-27008888
|
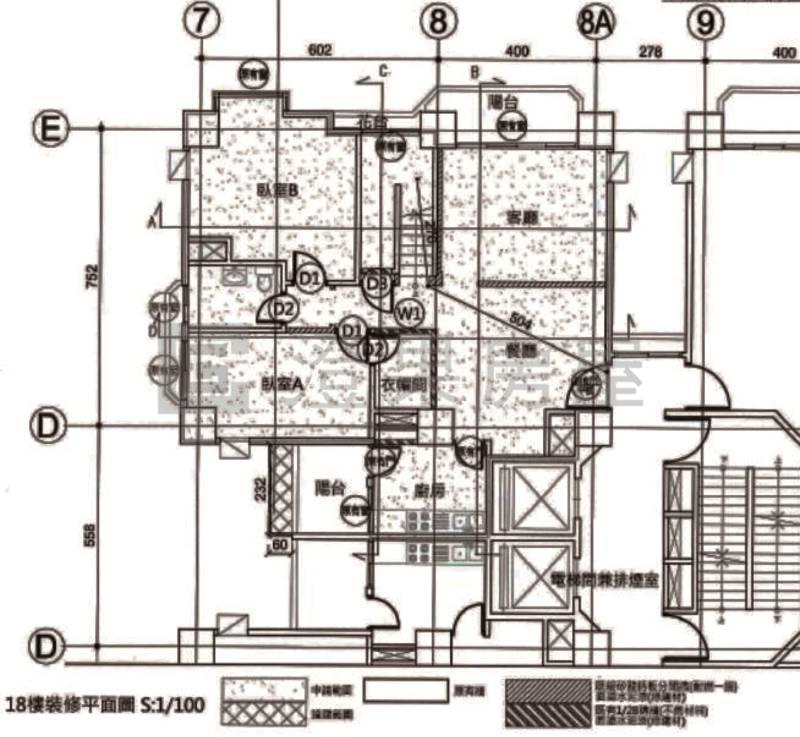
| 淡水小城景觀大戶 | 物件編號:AB0103 |
物件特色
|
|
|||||||||||||||||||||||||||||||||||||||||||||
捷運站牌 |
市場 |
學區 |
公園 |
商圈 |
| R28淡水站 (811 公尺) 淡金鄧公站 (861 公尺) 淡江大學站 (610 公尺) |
全聯福利中心 | 市立鄧公國小,淡江大學 | 淡水捷運生活圈 |














