龍潭石門加盟店(璟岩企業社)
03-4711338
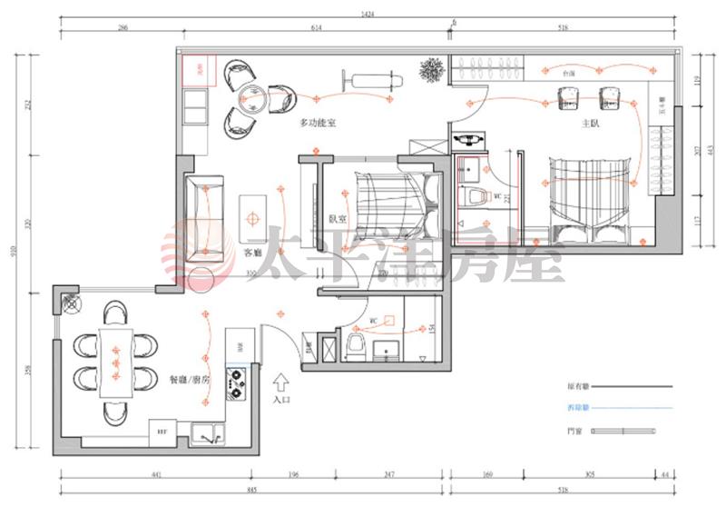
新整修超大2房車 陽光露台戶
物件編號:
S2947848
788
萬
大樓
2
房
3
廳
2
衛
物件特色
★全新整理屋況一級棒 ★獨立主臥大套房 ★超大室內空間25坪 ★超大車位前後可停雙車
地址
龍潭區民強街
建物登記
46.28
坪
附屬建物
11.41 坪
公共設施
4.74 坪
停車場
16.55 坪
地下室
分項面積主建物
13.57 坪
土地登記總坪數
10.56 坪
管理費
1450 / 月繳 元/每月
車位
公設車位/B1私人平面 大車位
座向
座北 朝南
屋齡
28 年
樓高/樓別
10 /9
類別
住家
外牆建材
二丁掛
捷運站牌
市場
學區
公園
商圈
美聯社、萊爾富、全家
市立三坑國小,市立石門國中
大平山公園
大龍潭生活圈,大龍潭生活圈