|
信義敦南加盟營業處(誠鄰不動產經紀股份有限公司)
02-2705-6969
|
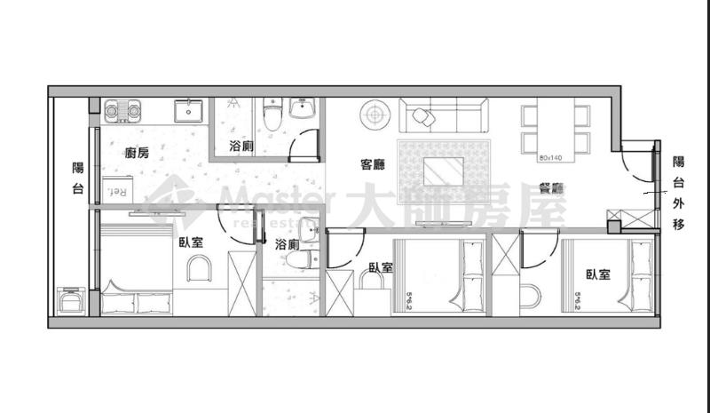
| 博愛學區歐風美妝三樓 | 物件編號:S2945222 |
物件特色
|
|
|||||||||||||||||||||||||||||||||||||||||||||
捷運站牌 |
市場 |
學區 |
公園 |
商圈 |
| BL19永春站 (610 公尺) 象山站 (785 公尺) 廣慈/奉天宮站 (627 公尺) 松德站 (83 公尺) |
松德市場 | 市立博愛國小,市立興雅國中 | 安康公園 | 信義生活商圈 |
















