板橋縣民大道加盟店(知恩國際行銷有限公司)
02-29521234
稚暉高投報收租屋
物件編號:
S2955375
1350
萬
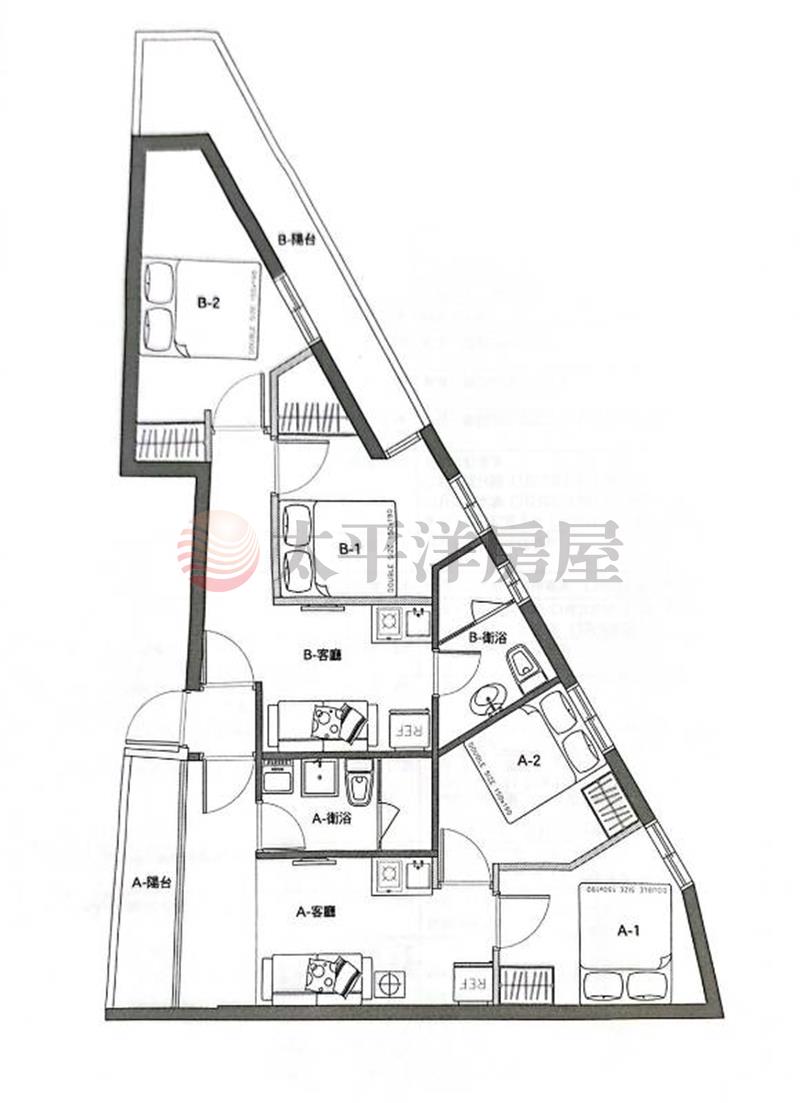
公寓
4
房
2
廳
2
衛
物件特色
陽台增建約2坪 年收租61.2萬
地址
板橋區稚暉街
建物登記
23.18
坪
附屬建物
1.45 坪
公共設施
0 坪
停車場
地下室
分項面積主建物
21.72 坪
土地登記總坪數
6.29 坪
管理費
元/每月
車位
無/
座向
屋齡
樓高/樓別
5 /2
類別
住家
外牆建材
捷運站牌
市場
學區
公園
商圈
府中站 (567 公尺)
亞東醫院站 (836 公尺)