蘆洲徐匯捷運特許加盟店(弘勤房屋顧問有限公司)
02-2288-5551
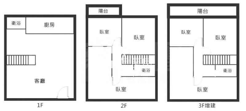
龍潭復興路大面寬透天
物件編號:
S2886592
990
萬
透天
3
房
1
廳
2
衛
物件特色
前院停車超方便.開車約4分鐘到市中心/面寬6米 1樓可隔孝親房/土地持分大.使用空間大 鄰婦幼館.自由聯盟生鮮超市.龍潭公有市場
地址
龍潭區復興路
建物登記
29.34
坪
附屬建物
3.93 坪
公共設施
0 坪
停車場
地下室
分項面積主建物
25.41 坪
土地登記總坪數
26.04 坪
管理費
元/每月
車位
無/
座向
座西南 朝東北
屋齡
44.3 年
樓高/樓別
2 /1-2
類別
住家
外牆建材
捷運站牌
市場
學區
公園
商圈
自由聯盟超市
龍潭國小,市立凌雲國中
環保公園
龍潭市區