林口未來城OUTLET特許加盟店(百盛不動產有限公司)
02-2609-9995
宏盛水悅一房車
物件編號:
S2915797
898
萬
大樓
1
房
1
廳
1
衛
物件特色
中高樓層 面中庭看海景寧靜不吵雜 社區公共設施齊全 屋況維持良好. 近美麗新淡海影城,近輕軌V10站
地址
三路一段
建物登記
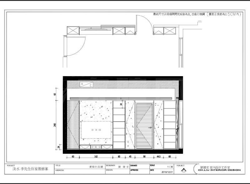
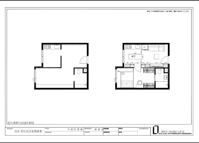
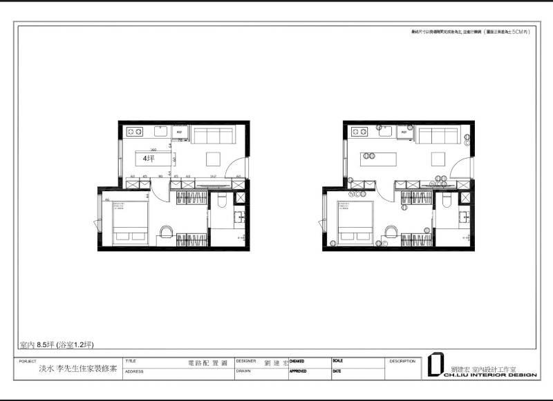
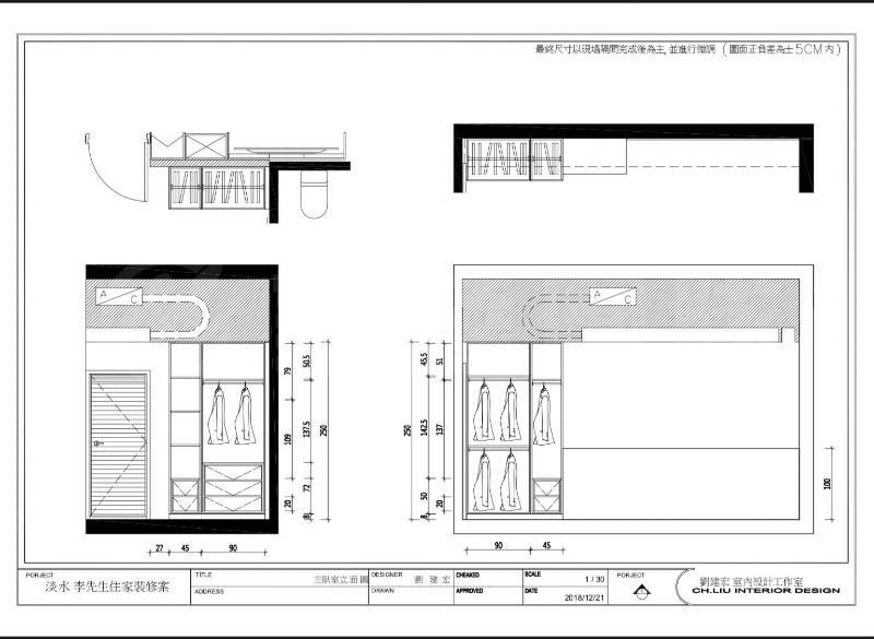
26.62
坪
附屬建物
1.81 坪
公共設施
6.09 坪
停車場
7.93 坪
地下室
分項面積主建物
10.78 坪
土地登記總坪數
3.63 坪
管理費
1421 / 月繳 元/每月
車位
產權車位/坡道平面
座向
座東南 朝西北
屋齡
7.1 年
樓高/樓別
23 /14
類別
住家
外牆建材
二丁掛
捷運站牌
市場
學區
公園
商圈
7-11
市立淡海小學
北新大忠淡大生活圈