蘆洲徐匯捷運特許加盟店(弘勤房屋顧問有限公司)
02-2288-5551
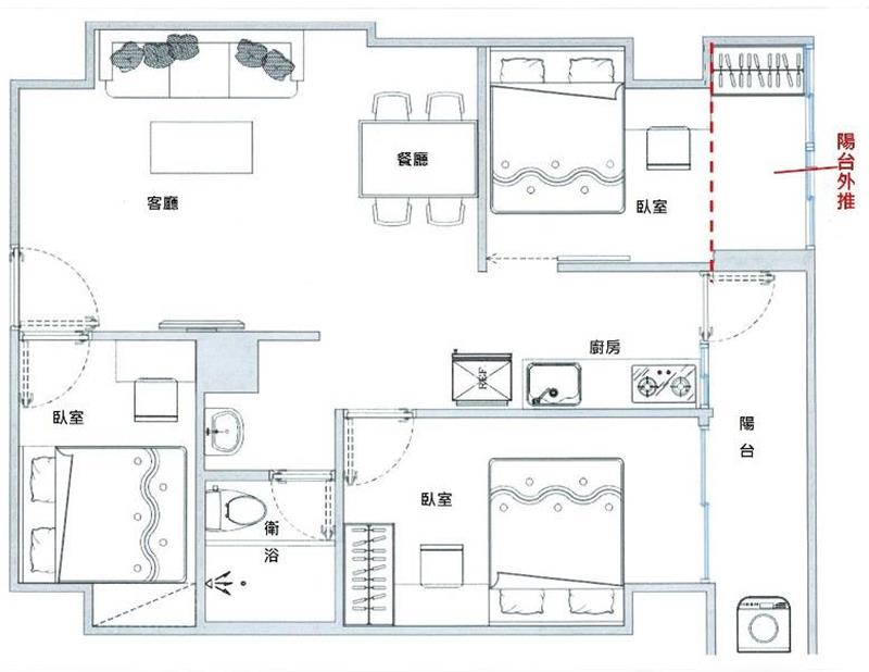
捷運菜寮站SRC電梯大三房
物件編號:
S2929191
1888
萬
大樓
3
房
2
廳
1
衛
物件特色
全新裝潢,水電管線重配重拉 高樓層通風採光好.格局方正,房間皆可放雙人床 使用天然瓦斯,鋼骨鋼筋混凝土造 近菜寮捷運站走路約5分鐘 過忠孝橋即到台北車站,交通便利
地址
三重區重安街
建物登記
31.6
坪
附屬建物
2.91 坪
公共設施
10.96 坪
停車場
地下室
分項面積主建物
17.73 坪
土地登記總坪數
2.98 坪
管理費
1264 / 月繳 元/每月
車位
獎勵車位/坡道平面
座向
屋齡
31.3 年
樓高/樓別
19 /9
類別
住家
外牆建材
捷運站牌
市場
學區
公園
商圈
O14菜寮站 (250 公尺)
三重站 (648 公尺)
市立集美國小