博愛學區歐風美妝三樓

2088102.01萬/坪

信義敦南加盟營業處(誠鄰不動產經紀股份有限公司)

02-2705-6969

 預約看屋  線上提問

博愛學區歐風美妝三樓

S2945222

賴春美0227056969

買屋 / 台北市 / 信義區 /
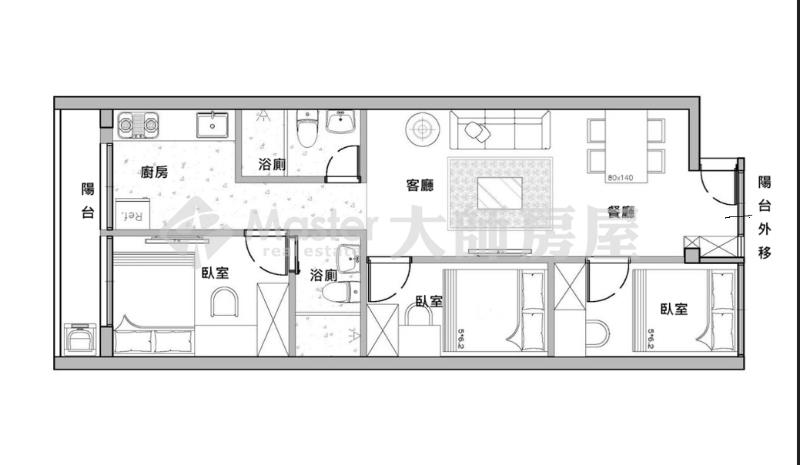
博愛學區歐風美妝三樓

物件詳細資料

點閱次數:18次

  • 房屋資訊

    外牆建材
    水泥牆
    車位/備註
    入門朝向
    座南 朝北
    使用分區
    第三種住宅區、道路用地(公共設施用地)
    現況
    空屋
    面臨路寬
    8 米
    建築結構
    加強磚造
    每層戶數
    2 戶
  • 謄本資料

    主建物
    18.7 坪
    附屬建物
    1.76 坪
    公共設施
    車位坪
    地下室
    地坪
    9.07 坪
    謄本主要用途
    住家用
    *小數點取二位第三位無條件捨去

周邊資訊

捷運‧公車站牌(1公里內)

捷運站:BL19永春站 (610 公尺)
捷運站:象山站 (785 公尺)
捷運站:廣慈/奉天宮站 (627 公尺)
捷運站:松德站 (83 公尺)
公車站:國稅局宿舍

市場

松德市場

鄰近學校(2公里內)

市立博愛國小,市立興雅國中

公園

安康公園、安康公園

商圈

信義生活商圈

特色說明

  • 近學校
  • 近市場
  • 近捷運站
  • 近公車站牌
  • 近商圈
  • 近公園
  • 近捷運永春、象山站,交通便利
  • 全新百萬歐風精緻裝潢,有天然瓦斯
  • 8米寬靜巷住宅,土地持分大,未來有潛力
  • 黃金三樓免爬高,近傳統市場,商店林立,百貨商圈

    地圖/街景

    實價登錄

    • 相似物件推薦

    AI智能助手
    • 查物件
    • 查實價登錄
    • 其他

    AI聊天紀錄

    登入會員,才能保留聊天紀錄
    我可以為你做什麼?
    • 查物件

      您可以查詢
      台中市北區最便宜的50坪大樓?

    • 查實價登錄

      例如 查詢
      台中市北區文心路四段附近

    • 房地產走勢預測

      依據區域過往價格、交易量預測未來價格走勢。

    • 查生活機能

      例如 可以輸入
      台中市北區北區國民運動中心附近的生活機能

    • 關於我們

      介紹台灣房仲網愛屋✨AI變裝、✨AI助手、網站設計、房屋搜尋、網站設計、房屋搜尋、我們的聯絡資訊、優勢說明、加入優惠。