電梯別墅【國雄青水硯 】5.5米雙車

398040.65萬/坪

七期潮洋公園加盟店(誠御不動產仲介有限公司)

04-22558288

 預約看屋  線上提問

電梯別墅【國雄青水硯 】5.5米雙車

S2941749

0422558288

買屋 / 台中市 / 北屯區 /
電梯別墅【國雄青水硯 】5.5米雙車

物件詳細資料

點閱次數:103次

  • 房屋資訊

    車位/備註
    獨立車位 B1自家車庫停雙車/ 自家車庫停雙車
    管理費
    5387元/月繳
    建築結構
    鋼筋混凝土造
    電梯總數
    1
  • 謄本資料

    主建物
    81.87 坪
    附屬建物
    6.02 坪
    公共設施
    10.03 坪
    車位坪
    地下室
    地坪
    32.9 坪
    謄本主要用途
    住宅、停車空間、梯間
    *小數點取二位第三位無條件捨去

周邊資訊

市場

Costco好市多

鄰近學校(2公里內)

市立建功國小

公園

大坑風景區

特色說明

  • 近學校
  • 近市場
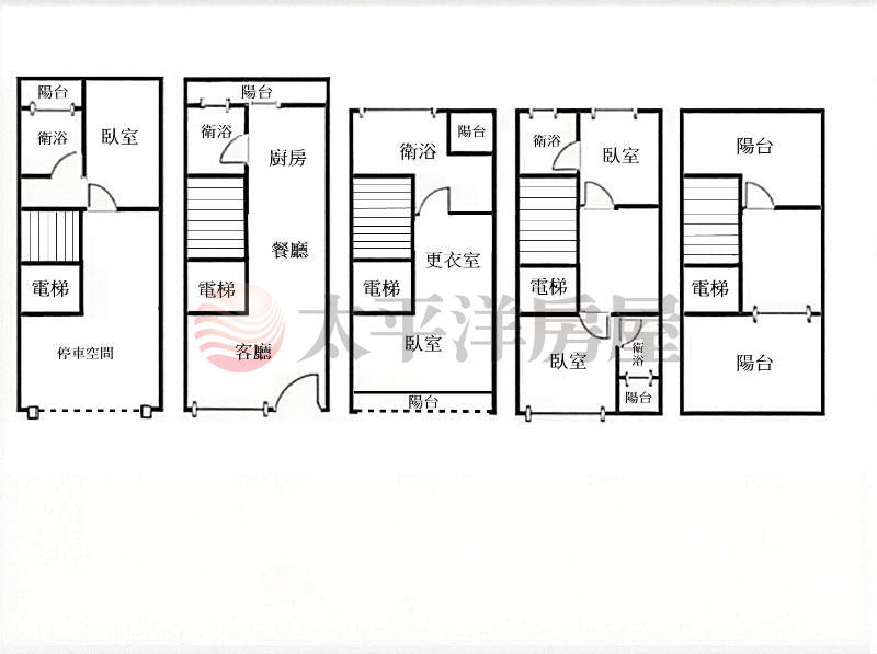
  • 5.5 米大面寬,氣派門面一眼就知道不一樣
  • 總建近百坪|土地近 35坪,真正有感的空間尺度
  • 4 房全套房設計,三代同堂也能各自保有隱私
  • 國雄建設 指標作品,社區中庭綠意環繞、棟距寬闊不壓迫
  • 高規格管理,住戶單純,稀有電梯別墅規劃

地圖/街景

實價登錄

  • 相似物件推薦

AI智能助手
  • 查物件
  • 查實價登錄
  • 其他

AI聊天紀錄

登入會員,才能保留聊天紀錄
我可以為你做什麼?
  • 查物件

    您可以查詢
    台中市北區最便宜的50坪大樓?

  • 查實價登錄

    例如 查詢
    台中市北區文心路四段附近

  • 房地產走勢預測

    依據區域過往價格、交易量預測未來價格走勢。

  • 查生活機能

    例如 可以輸入
    台中市北區北區國民運動中心附近的生活機能

  • 關於我們

    介紹台灣房仲網愛屋✨AI變裝、✨AI助手、網站設計、房屋搜尋、網站設計、房屋搜尋、我們的聯絡資訊、優勢說明、加入優惠。