埔心國中旁三房美廈附車位
1150
萬
28.92
萬/坪
詳細資料
周邊
特色說明
地圖街景
實價登錄
彰化縣府加盟店(赫成開發有限公司)
04-7281000
預約看屋
線上提問
埔心國中旁三房美廈附車位
S2905728
047281000
預約
提問
愛屋優勢👍
房管平台💎
物件刊登🤝
.刊登出租
.刊登出售
.收費標準
買點數🛒
訂價💲
客群💞
留言✍️
AI✨點數
會員登入
一般會員
帳號
此欄位必填!
密碼
此欄位必填!
登入
送出註冊/登入視同您已閱讀,並同意
權利義務說明內容
註冊
|
忘記密碼
此欄位必填!
此欄位必填!
此欄位必填!
登入
忘記密碼
|
忘記密碼
Email
簡訊
請您輸入店代號及帳號,我們會儘速將您的密碼傳送至您的信箱或手機簡訊。
店代號
帳 號
送出
台灣房仲網愛屋✨AI變裝、✨AI助手、網站設計、房屋搜尋、網站設計、房屋搜尋
[登入]
↟首頁
住家
電梯大樓
公寓/套房
透天別墅
農舍
預售屋
新成屋
其他住宅
住房
土地廠辦
工業用地
商業用地
建地
農地
其他土地
廠辦|電梯大樓
廠辦|透天
土地廠辦
其他廠辦
買屋
找售案
預售屋
新成屋
廠房土地
買屋流程
應繳稅費
貸款神算
買方權益
買方需求留言
買賣百科
內政部實價登錄
物件追蹤清單
租屋
找租案
電梯大樓
公寓/套房
透天別墅
農舍
新成屋
廠房土地
出租流程
租方權益
承租方權益
租/出租需求留言
租屋百科
賣屋
賣屋流程
應繳稅費
賣方權益
賣方需求留言
買賣百科
履約保證
公告土地現值
土地增值稅
重購退土增稅
贈與稅
房地合一稅2.0
台灣房仲網會員刊登
會員
會員中心
帳號管理
物件管理
刊登租案
刊登售案
刊登點數訂購
配對通知
物件收藏清單
我的訂單
會員專網
房仲會員行銷方案
🛒愛屋商品訂購
🛒愛屋商品購物車
推薦
🛒訂閱網站/系統
共享平台登入
房管登入
貸款神算
房管客群介紹
網站客群介紹
🅱包管家客群
BeHouse比屋168
募集開發客群介紹
來電高手客群介紹
房仲會員客群介紹
❓網站使用說明
英特聶
愛屋團隊簡介
愛屋服務
SaaS軟體即服務
官網設計專家
愛屋優勢
隱私權聲明
英特聶公司官網
英特聶里程碑
🅱包管家APP官網
愛屋
RWD網站
📚購物網站平台
房仲店網_人網
房仲會員網店
愛屋房管系統
BeHouse比屋168
總部平台系統網站
✍️產說神器
📝格局圖繪製系統
來電高手/DM/VR
🅱包管家APP
IoT雲端門控
💲產品訂價🛒
活動
愛屋活動剪影
系統說明
愛屋優勢
房仲代管
媒體報導
愛屋RWD網站
課程報名
線上徵才
愛用
台北
新北
台中
高雄
桃園
新竹市
新竹縣
基隆
宜蘭
彰化
雲林
嘉義
台南
南投
澎湖
苗栗
會員登入
買屋
/
彰化縣
/
埔心鄉
/
埔心國中旁三房美廈附車位
請注意,上方物件照片如有街景,為物件附近環境介紹,非物件本身。
編號:
S2905728
1150
萬
(含車位價)
28.92
萬/坪
貸款試算
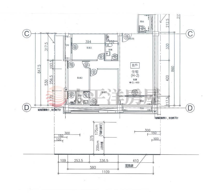
格局
3房 2 廳 2 衛
格局
屋齡
未滿一年
屋齡
權狀坪
39.77 坪
權狀坪
地址
埔心鄉育英二街
型態/類別
華廈 /住家
樓別/樓高
4 /5
主+附
26.96 坪
地坪
AI生活機能
AI價格分析
彰化縣府加盟店(赫成開發有限公司)
彰化縣彰化市博愛街80號
04-7281000
立即預約看屋
線上提問
先生
小姐
方便聯絡時間
皆可
早上
下午
晚上
預約看屋
先生
小姐
線上提問
物件詳細資料
點閱次數:29次
房屋資訊
車位/備註
私有 機械
入門朝向
座南 朝北
現況
空屋
建築結構
鋼筋混凝土造
電梯總數
1
每層戶數
2 戶
0000001074
0000001075
謄本資料
主建物
24.52 坪
附屬建物
2.43 坪
公共設施
12.81 坪(內含車位:2.1坪)
車位坪
地下室
地坪
謄本主要用途
集合住宅
*小數點取二位第三位無條件捨去
周邊資訊
鄰近學校(2公里內)
縣立埔心國小,縣立埔心國中
特色說明
近學校
近埔心學區,孩子上課免煩惱
全新第一手屋,超值物件,格局漂亮,房間都有開窗
地圖/街景
實價登錄
相似物件推薦
近埔心國中三...
1220
萬
建坪:
44.16
3
房
埔心鄉育英二街
埔心國中旁全...
1070
萬
建坪:
39.16
3
房
埔心鄉育英路
近埔心國中三...
1070
萬
建坪:
39.15
3
房
埔心鄉育英二街
坤悅心里程二...
1180
萬
建坪:
37.51
2
房
員鹿路一段
埔心全新2房
1098
萬
建坪:
32.08
2
房
埔心鄉員鹿路一段
埔心國中三房...
1150
萬
建坪:
39.15
3
房
埔心鄉育英二街
惠眾心幸福三...
980
萬
建坪:
33.64
3
房
埔心鄉育英二街
幸福3房(1...
1066
萬
建坪:
32.74
3
房
埔心鄉中正路二段
埔心正源六期...
1066
萬
建坪:
32.74
3
房
埔心鄉中正路二段
AI智能助手
查物件
查實價登錄
其他
我可以為你做什麼?
查物件
您可以查詢
台中市北區最便宜的50坪大樓?
查實價登錄
例如 查詢
台中市北區文心路四段附近
房地產走勢預測
依據區域過往價格、交易量預測未來價格走勢。
查生活機能
例如 可以輸入
台中市北區北區國民運動中心附近的生活機能
關於我們
介紹台灣房仲網愛屋✨AI變裝、✨AI助手、網站設計、房屋搜尋、網站設計、房屋搜尋、我們的聯絡資訊、優勢說明、加入優惠。
上傳檔案
從電腦上傳
從電腦上傳2
搜尋
搜尋網頁
你好,我是您的房地產小幫手,叫做愛屋,我可以為你做什麼?
🔍【查物件】
📈【查實價登錄】
🏙【生活機能介紹】
💬【其他房地產相關】
助手
愛屋✨AI助手
聽寫
AI說給你聽
送出
AI 可能會發生錯誤。請查核重要資訊。