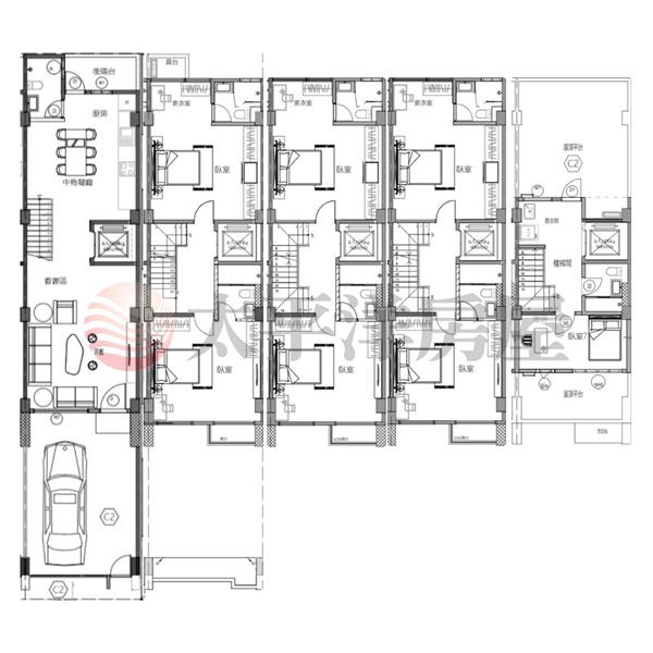
曜馬和居七房電梯豪墅

258027.52萬/坪

草屯中興加盟店(鴻昌房屋仲介有限公司)

049-2337677

 預約看屋  線上提問

曜馬和居七房電梯豪墅

S2853020

0492337677

買屋 / 南投縣 / 南投市 /
曜馬和居七房電梯豪墅

物件詳細資料

點閱次數:61次

  • 房屋資訊

    外牆建材
    高級石材
    車位/備註
    私有 車庫
    入門朝向
    座西北 朝東南
    使用分區
    住宅
    現況
    空屋
    面臨路寬
    8 米
    建築結構
    鋼筋混凝土造
    電梯總數
    1
  • 謄本資料

    主建物
    85.55 坪
    附屬建物
    8.19 坪
    公共設施
    車位坪
    地下室
    地坪
    36.3 坪
    謄本主要用途
    住宅、停車空間、樓梯間
    *小數點取二位第三位無條件捨去

周邊資訊

市場

果菜市場

鄰近學校(2公里內)

縣立南投國中,縣立漳和國小

公園

平山公園

商圈

永興市場生活圈

特色說明

  • 店長推薦
  • 近學校
  • 近市場
  • 近商圈
  • 近公園
  • 花崗岩紋理揉進每寸空間大器低調構築出力與美
  • 一府七室各自成章舒適挑高天光空氣自由流動
  • 間間套房成就三代同堂的理想藍圖
  • 鄰近公園 超商 學區 交流道生活機能一步到位
  • 擁有百坪大空間為能看懂空間價值的您而存在

地圖/街景

實價登錄

  • 相似物件推薦

AI智能助手
  • 查物件
  • 查實價登錄
  • 其他

AI聊天紀錄

登入會員,才能保留聊天紀錄
我可以為你做什麼?
  • 查物件

    您可以查詢
    台中市北區最便宜的50坪大樓?

  • 查實價登錄

    例如 查詢
    台中市北區文心路四段附近

  • 房地產走勢預測

    依據區域過往價格、交易量預測未來價格走勢。

  • 查生活機能

    例如 可以輸入
    台中市北區北區國民運動中心附近的生活機能

  • 關於我們

    介紹台灣房仲網愛屋✨AI變裝、✨AI助手、網站設計、房屋搜尋、網站設計、房屋搜尋、我們的聯絡資訊、優勢說明、加入優惠。