北單二獨棟電墅

780095.66萬/坪

七期惠中加盟店(億營開發股份有限公司)

04-22591288

 預約看屋  線上提問

北單二獨棟電墅

6320730

0422591288

買屋 / 台中市 / 南屯區 /
北單二獨棟電墅
和澄豐釀

物件詳細資料

點閱次數:81次

  • 房屋資訊

    外牆建材
    高級石材
    車位/備註
    庭院車位 庭院車位
    入門朝向
    座南 朝北
    使用分區
    住1之B
    現況
    空屋
    面臨路寬
    10 米
    建築結構
    鋼筋混凝土造
    電梯總數
    1
    每層戶數
    1 戶
  • 謄本資料

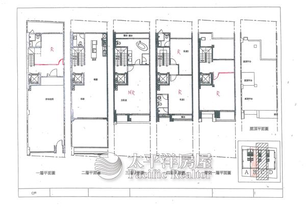
    主建物
    74.55 坪
    附屬建物
    6.98 坪
    公共設施
    車位坪
    地下室
    地坪
    32.41 坪
    謄本主要用途
    住宅、停車空間、樓梯間、機械房(水箱室)
    *小數點取二位第三位無條件捨去

周邊資訊

市場

南屯市場&黎明市場

鄰近學校(2公里內)

市立南屯國小,市立萬和國中

公園

南屯公園

商圈

其他 、單元二重劃區生活圈

特色說明

  • 近學校
  • 近市場
  • 近商圈
  • 1、私有獨立2-3車位 2、免管理費,住愈久省愈多 3、5分鐘步行可達花市及黎明市場 4、大理崗石外觀 5、4-5房.真正可3代同堂 6、基地臨接10米路方便出入 7、8-10分鐘車程到台中高鐵站 8、4分鐘上國道一匝道口 9、10分鐘到達新光、大遠百、老虎城等百貨公司

地圖/街景

實價登錄

  • 相似物件推薦

AI智能助手
  • 查物件
  • 查實價登錄
  • 其他

AI聊天紀錄

登入會員,才能保留聊天紀錄
我可以為你做什麼?
  • 查物件

    您可以查詢
    台中市北區最便宜的50坪大樓?

  • 查實價登錄

    例如 查詢
    台中市北區文心路四段附近

  • 房地產走勢預測

    依據區域過往價格、交易量預測未來價格走勢。

  • 查生活機能

    例如 可以輸入
    台中市北區北區國民運動中心附近的生活機能

  • 關於我們

    介紹台灣房仲網愛屋✨AI變裝、✨AI助手、網站設計、房屋搜尋、網站設計、房屋搜尋、我們的聯絡資訊、優勢說明、加入優惠。