大里運動公園角間透店

350034.34萬/坪

台中興大健康加盟店(仲友開發有限公司)

04-22654000

 預約看屋  線上提問

大里運動公園角間透店

6334065

0422654000

買屋 / 台中市 / 大里區 /
大里運動公園角間透店

物件詳細資料

點閱次數:35次

  • 房屋資訊

    外牆建材
    二丁掛
    車位/備註
    私有 自有地
    入門朝向
    座西北 朝東南
    使用分區
    住宅區
    現況
    自住(用)
    面臨路寬
    12 米
    建築結構
    鋼筋混凝土造
  • 謄本資料

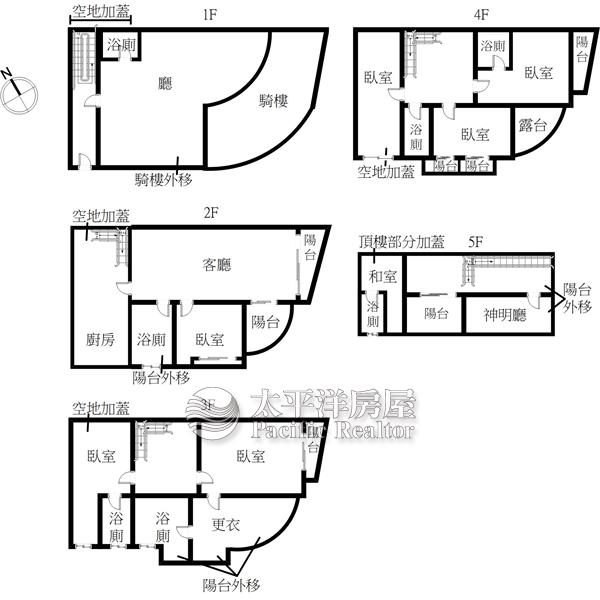
    主建物
    88.83 坪
    附屬建物
    13.1 坪
    公共設施
    車位坪
    地下室
    地坪
    37.71 坪
    謄本主要用途
    人行道 店舖 住宅
    *小數點取二位第三位無條件捨去

周邊資訊

市場

內新市場

鄰近學校(2公里內)

市立益民國小,市立光榮國中

公園

大新兒童公園

商圈

大里

特色說明

  • 近學校
  • 近市場
  • 近商圈
  • 近公園
  • 近醫療機構
  • 1、正大里二期大角店,地點醒目 2、適文武百市,可停多車、可獨立進出 3、增建到滿,使用空間大 4、交通便利,近74號、中投

地圖/街景

實價登錄

  • 相似物件推薦

AI智能助手
  • 查物件
  • 查實價登錄
  • 其他

AI聊天紀錄

登入會員,才能保留聊天紀錄
我可以為你做什麼?
  • 查物件

    您可以查詢
    台中市北區最便宜的50坪大樓?

  • 查實價登錄

    例如 查詢
    台中市北區文心路四段附近

  • 房地產走勢預測

    依據區域過往價格、交易量預測未來價格走勢。

  • 查生活機能

    例如 可以輸入
    台中市北區北區國民運動中心附近的生活機能

  • 關於我們

    介紹台灣房仲網愛屋✨AI變裝、✨AI助手、網站設計、房屋搜尋、網站設計、房屋搜尋、我們的聯絡資訊、優勢說明、加入優惠。