吉璞長虹企業總部
6980
萬
42.85
萬/坪
詳細資料
周邊
特色說明
地圖街景
實價登錄
永福不動產(永福不動產)
02-2321-0688
預約看屋
線上提問
吉璞長虹企業總部
S2946360
陳美妃
0939868617
預約
提問
愛屋優勢👍
房管平台💎
物件刊登🤝
.刊登出租
.刊登出售
.收費標準
買點數🛒
訂價💲
客群💞
留言✍️
AI✨點數
會員登入
一般會員
帳號
此欄位必填!
密碼
此欄位必填!
登入
送出註冊/登入視同您已閱讀,並同意
權利義務說明內容
註冊
|
忘記密碼
此欄位必填!
此欄位必填!
此欄位必填!
登入
忘記密碼
|
忘記密碼
Email
簡訊
請您輸入店代號及帳號,我們會儘速將您的密碼傳送至您的信箱或手機簡訊。
店代號
帳 號
送出
台灣房仲網愛屋✨AI變裝、✨AI助手、網站設計、房屋搜尋、網站設計、房屋搜尋
[登入]
↟首頁
住家
電梯大樓
公寓/套房
透天別墅
農舍
預售屋
新成屋
其他住宅
住房
土地廠辦
工業用地
商業用地
建地
農地
其他土地
廠辦|電梯大樓
廠辦|透天
土地廠辦
其他廠辦
買屋
找售案
預售屋
新成屋
廠房土地
買屋流程
應繳稅費
貸款神算
買方權益
買方需求留言
買賣百科
內政部實價登錄
物件追蹤清單
租屋
找租案
電梯大樓
公寓/套房
透天別墅
農舍
新成屋
廠房土地
出租流程
租方權益
承租方權益
租/出租需求留言
租屋百科
賣屋
賣屋流程
應繳稅費
賣方權益
賣方需求留言
買賣百科
履約保證
公告土地現值
土地增值稅
重購退土增稅
贈與稅
房地合一稅2.0
台灣房仲網會員刊登
會員
會員中心
帳號管理
物件管理
刊登租案
刊登售案
刊登點數訂購
配對通知
物件收藏清單
我的訂單
會員專網
房仲會員行銷方案
🛒愛屋商品訂購
🛒愛屋商品購物車
推薦
🛒訂閱網站/系統
共享平台登入
房管登入
貸款神算
房管客群介紹
網站客群介紹
🅱包管家客群
BeHouse比屋168
募集開發客群介紹
來電高手客群介紹
房仲會員客群介紹
❓網站使用說明
英特聶
愛屋團隊簡介
愛屋服務
SaaS軟體即服務
官網設計專家
愛屋優勢
隱私權聲明
英特聶公司官網
英特聶里程碑
🅱包管家APP官網
愛屋
RWD網站
📚購物網站平台
房仲店網_人網
房仲會員網店
愛屋房管系統
BeHouse比屋168
總部平台系統網站
✍️產說神器
📝格局圖繪製系統
來電高手/DM/VR
🅱包管家APP
IoT雲端門控
💲產品訂價🛒
活動
愛屋活動剪影
系統說明
愛屋優勢
房仲代管
媒體報導
愛屋RWD網站
課程報名
線上徵才
愛用
台北
新北
台中
高雄
桃園
新竹市
新竹縣
基隆
宜蘭
彰化
雲林
嘉義
台南
南投
澎湖
苗栗
會員登入
買屋
/
新北市
/
汐止區
/
吉璞長虹企業總部
請注意,上方物件照片如有街景,為物件附近環境介紹,非物件本身。
編號:
S2946360
6980
萬
42.85
萬/坪
貸款試算
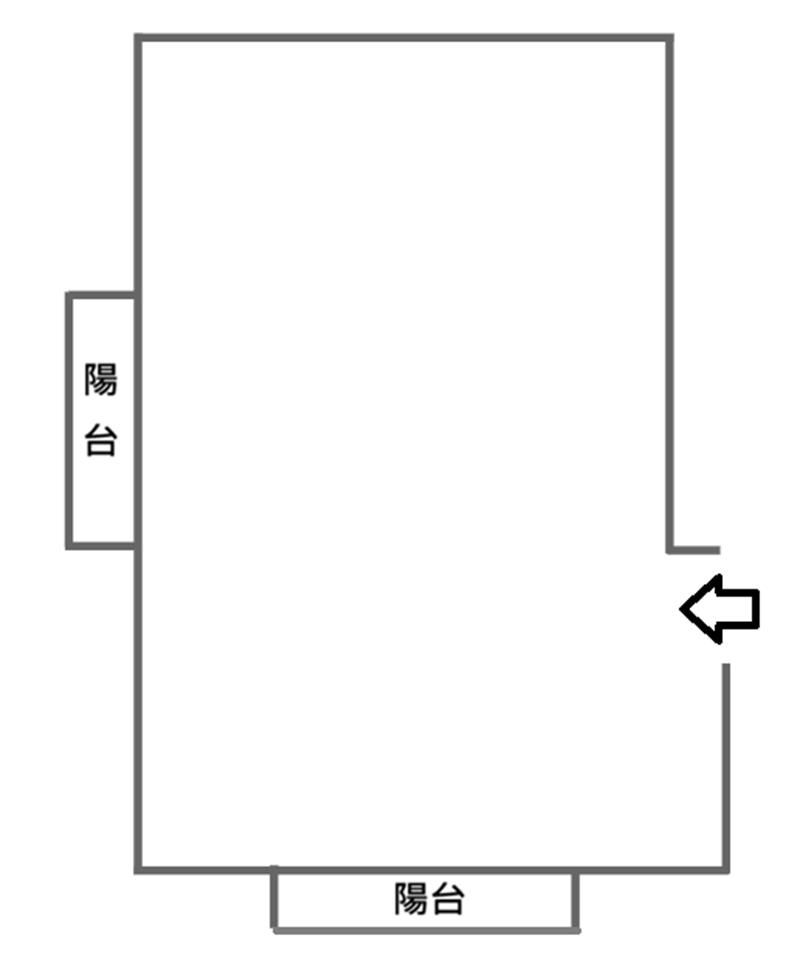
格局
開放式
格局
屋齡
13.9 年
屋齡
建坪
162.9 坪
建坪
地址
沙沚區福德二路
型態/類別
大樓 /辦公
樓別/樓高
3 /12
主+附
84.02 坪
地坪
22.4 坪
AI生活機能
AI價格分析
陳美妃
0939868617
林百昆
0910045870
永福不動產(永福不動產)
台北市大安區永康街39-1號1樓
02-2321-0688
立即預約看屋
線上提問
先生
小姐
方便聯絡時間
皆可
早上
下午
晚上
我同意條款
隱私權聲明
預約看屋
先生
小姐
我同意條款
隱私權聲明
線上提問
物件詳細資料
點閱次數:92次
房屋資訊
車位/備註
公設車位 坡道平面
管理費
11318元/月繳
入門朝向
座西 朝東
現況
空屋
建築結構
鋼筋混凝土造
謄本資料
主建物
74.52 坪
附屬建物
9.5 坪
公共設施
78.88 坪(內含車位:21.43坪)
車位坪
地下室
地坪
22.4 坪
謄本主要用途
一般事務所
*小數點取二位第三位無條件捨去
周邊資訊
市場
傳統市場
鄰近學校(2公里內)
市立北峰國小,市立樟樹國中
特色說明
近學校
近市場
汐止吉樸長虹大樓
企業總部氣派大方屋新
24小時保全物業管理
刷卡門禁森嚴地段優
地圖/街景
實價登錄
相似物件推薦
遠雄U-TO...
5888
萬
建坪:
153.59
開放
汐止區新台五路一段
8162優質...
6980
萬
建坪:
162.9
開放式
汐止區福德二路
AI智能助手
查物件
查實價登錄
其他
我可以為你做什麼?
查物件
您可以查詢
台中市北區最便宜的50坪大樓?
查實價登錄
例如 查詢
台中市北區文心路四段附近
房地產走勢預測
依據區域過往價格、交易量預測未來價格走勢。
查生活機能
例如 可以輸入
台中市北區北區國民運動中心附近的生活機能
關於我們
介紹台灣房仲網愛屋✨AI變裝、✨AI助手、網站設計、房屋搜尋、網站設計、房屋搜尋、我們的聯絡資訊、優勢說明、加入優惠。
上傳檔案
從電腦上傳
從電腦上傳2
搜尋
搜尋網頁
你好,我是您的房地產小幫手,叫做愛屋,我可以為你做什麼?
🔍【查物件】
📈【查實價登錄】
🏙【生活機能介紹】
💬【其他房地產相關】
助手
愛屋✨AI助手
聽寫
AI說給你聽
送出
AI 可能會發生錯誤。請查核重要資訊。