北區大面寬金店面
3980
萬
詳細資料
周邊
特色說明
地圖街景
實價登錄
雅豐台灣房屋后里特許加盟店(雅丞不動產投資有限公司)
04-25590888
預約看屋
線上提問
北區大面寬金店面
房屋7401
0425590888
預約
提問
愛屋優勢👍
房管平台💎
物件刊登🤝
.刊登出租
.刊登出售
.收費標準
買點數🛒
訂價💲
客群💞
留言✍️
AI✨點數
會員登入
一般會員
帳號
此欄位必填!
密碼
此欄位必填!
登入
送出註冊/登入視同您已閱讀,並同意
權利義務說明內容
註冊
|
忘記密碼
此欄位必填!
此欄位必填!
此欄位必填!
登入
忘記密碼
|
忘記密碼
Email
簡訊
請您輸入店代號及帳號,我們會儘速將您的密碼傳送至您的信箱或手機簡訊。
店代號
帳 號
送出
台灣房仲網愛屋✨AI變裝、✨AI助手、網站設計、房屋搜尋、網站設計、房屋搜尋
[登入]
↟首頁
住家
電梯大樓
公寓/套房
透天別墅
農舍
預售屋
新成屋
其他住宅
住房
土地廠辦
工業用地
商業用地
建地
農地
其他土地
廠辦|電梯大樓
廠辦|透天
土地廠辦
其他廠辦
買屋
找售案
預售屋
新成屋
廠房土地
買屋流程
應繳稅費
貸款神算
買方權益
買方需求留言
買賣百科
內政部實價登錄
物件追蹤清單
租屋
找租案
電梯大樓
公寓/套房
透天別墅
農舍
新成屋
廠房土地
出租流程
租方權益
承租方權益
租/出租需求留言
租屋百科
賣屋
賣屋流程
應繳稅費
賣方權益
賣方需求留言
買賣百科
履約保證
公告土地現值
土地增值稅
重購退土增稅
贈與稅
房地合一稅2.0
台灣房仲網會員刊登
會員
會員中心
帳號管理
物件管理
刊登租案
刊登售案
刊登點數訂購
配對通知
物件收藏清單
我的訂單
會員專網
房仲會員行銷方案
🛒愛屋商品訂購
🛒愛屋商品購物車
推薦
🛒訂閱網站/系統
共享平台登入
房管登入
貸款神算
房管客群介紹
網站客群介紹
🅱包管家客群
BeHouse比屋168
募集開發客群介紹
來電高手客群介紹
房仲會員客群介紹
❓網站使用說明
英特聶
愛屋團隊簡介
愛屋服務
SaaS軟體即服務
官網設計專家
愛屋優勢
隱私權聲明
英特聶公司官網
英特聶里程碑
🅱包管家APP官網
愛屋
RWD網站
📚購物網站平台
房仲店網_人網
房仲會員網店
愛屋房管系統
BeHouse比屋168
總部平台系統網站
✍️產說神器
📝格局圖繪製系統
來電高手/DM/VR
🅱包管家APP
IoT雲端門控
💲產品訂價🛒
活動
愛屋活動剪影
系統說明
愛屋優勢
房仲代管
媒體報導
愛屋RWD網站
課程報名
線上徵才
愛用
台北
新北
台中
高雄
桃園
新竹市
新竹縣
基隆
宜蘭
彰化
雲林
嘉義
台南
南投
澎湖
苗栗
會員登入
買屋
/
台中市
/
北區
/
北區大面寬金店面
請注意,上方物件照片如有街景,為物件附近環境介紹,非物件本身。
編號:
房屋7401
3980
萬
(含車位價)
貸款試算
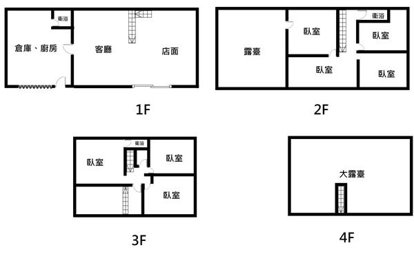
格局
7房 3 廳 3 衛
格局
屋齡
51.3 年
屋齡
權狀坪
56.55 坪
權狀坪
地址
北區南京東路二段
型態/類別
透天 /店面
樓別/樓高
1-4 /4
建坪
56.55 坪
地坪
35.09 坪
AI生活機能
AI價格分析
雅豐台灣房屋后里特許加盟店(雅丞不動產投資有限公司)
台中市后里區甲后路一段657號
04-25590888
立即預約看屋
線上提問
先生
小姐
方便聯絡時間
皆可
早上
下午
晚上
預約看屋
先生
小姐
線上提問
物件詳細資料
點閱次數:3次
房屋資訊
車位/備註
私有 騎樓
入門朝向
座西朝東
補充說明
有承租隔壁國有地11.49坪
現況
空屋
面臨路寬
12 米
謄本資料
主建物
56.55 坪
附屬建物
公共設施
車位坪
地下室
地坪
35.09 坪
謄本主要用途
*小數點取二位第三位無條件捨去
周邊資訊
市場
新光黃昏市場
特色說明
近市場
北區稀有大面寬店面,大地坪大空間,室內坪數百坪,門面醒目,曝光度高,投資自用兩相宜。
地圖/街景
實價登錄
相似物件推薦
國強街三面採...
3680
萬
建坪:
57.97
依現場為準
北區國強街
中國醫輕屋齡...
3280
萬
建坪:
65.56
11
房
北區五權路
北區興進園道...
3280
萬
建坪:
57.97
4
房
北區國強街
中國醫三面臨...
3280
萬
3680萬
建坪:
57.97
4
房
北區國強街
中醫學士路5...
4100
萬
建坪:
61.91
5
房
北區學士路
北區太原車站...
3280
萬
建坪:
57.97
4
房
北區國強街
北區獨棟三面...
3280
萬
建坪:
57.97
4
房
北區國強街
國強街大地坪...
3280
萬
建坪:
57.97
4
房
北區國強街93巷
中醫商圈正學...
4100
萬
建坪:
61.91
5
房
北區學士路
科博館收租大...
3488
萬
3588萬
建坪:
63.82
5
房
北區博館路
中醫大地坪1...
3980
萬
建坪:
51.09
13
房
北區德化街
國強街大地坪...
3280
萬
建坪:
57.97
4
房
北區國強街
中國醫正學士...
4100
萬
建坪:
61.92
5
房
北區學士路
中國醫學士路...
4200
萬
建坪:
61.92
依現場為準
北區學士路
正健行路大地...
4588
萬
建坪:
63.73
2
房
北區健行路
AI智能助手
查物件
查實價登錄
其他
我可以為你做什麼?
查物件
您可以查詢
台中市北區最便宜的50坪大樓?
查實價登錄
例如 查詢
台中市北區文心路四段附近
房地產走勢預測
依據區域過往價格、交易量預測未來價格走勢。
查生活機能
例如 可以輸入
台中市北區北區國民運動中心附近的生活機能
關於我們
介紹台灣房仲網愛屋✨AI變裝、✨AI助手、網站設計、房屋搜尋、網站設計、房屋搜尋、我們的聯絡資訊、優勢說明、加入優惠。
上傳檔案
從電腦上傳
從電腦上傳2
搜尋
搜尋網頁
你好,我是您的房地產小幫手,叫做愛屋,我可以為你做什麼?
🔍【查物件】
📈【查實價登錄】
🏙【生活機能介紹】
💬【其他房地產相關】
助手
愛屋✨AI助手
聽寫
AI說給你聽
送出
AI 可能會發生錯誤。請查核重要資訊。