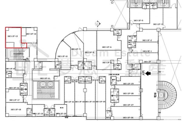
C21082 桃園站前全新裝潢飯店式套房2-13

55044萬/坪

夢想總店(夢想不動產仲介有限公司)

03-4276966

 預約看屋  線上提問

C21082 桃園站前全新裝潢飯店式套房2-13

S2849631

034276966

買屋 / 桃園市 / 桃園區 /
C21082 桃園站前全新裝潢飯店式套房2-13

物件詳細資料

點閱次數:77次

  • 房屋資訊

    車位/備註
    管理費
    875元/月繳
    入門朝向
    座南 朝北
    補充說明
    平面車位可另購
    現況
    空屋
    面臨路寬
    20 米
    建築結構
    鋼筋混凝土造
    電梯總數
    1
    每層戶數
    27 戶
  • 謄本資料

    主建物
    7.6 坪
    附屬建物
    公共設施
    4.89 坪
    車位坪
    地下室
    地坪
    1.1 坪
    謄本主要用途
    辦公室
    *小數點取二位第三位無條件捨去

周邊資訊

捷運‧公車站牌(1公里內)

捷運站:桃園車站站 (911 公尺)
捷運站:永和市場站 (650 公尺)
公車站:南門市場站、中山三民路口站

市場

南門市場 、百貨公司

鄰近學校(2公里內)

市立西門國小,市立桃園國中,私立振聲高中(國中部)

公園

文昌公園、南門公園

特色說明

  • 近學校
  • 近市場
  • 近捷運站
  • 近公車站牌
  • 近公園
  • 緊鄰南門市場、桃園車站站前,生活圈機能發達。
  • 地理位置絕佳,近火車站,三鐵共構投資、自住皆宜。
  • 全新質感裝潢,開放式流理台,廚具設計可炊煮。
  • 24H警衛管理代收包裹,垃圾資源回收空間。
  • 親民總價,超高投報率,收租首選,置產低負擔。合法安全送審合格,產權獨立清楚。

地圖/街景

實價登錄

  • 相似物件推薦

AI智能助手
  • 查物件
  • 查實價登錄
  • 其他

AI聊天紀錄

登入會員,才能保留聊天紀錄
我可以為你做什麼?
  • 查物件

    您可以查詢
    台中市北區最便宜的50坪大樓?

  • 查實價登錄

    例如 查詢
    台中市北區文心路四段附近

  • 房地產走勢預測

    依據區域過往價格、交易量預測未來價格走勢。

  • 查生活機能

    例如 可以輸入
    台中市北區北區國民運動中心附近的生活機能

  • 關於我們

    介紹台灣房仲網愛屋✨AI變裝、✨AI助手、網站設計、房屋搜尋、網站設計、房屋搜尋、我們的聯絡資訊、優勢說明、加入優惠。